

Food Processing Industry Factory Wastewater Treatment Solutions
Unlike municipal sewage, food processing effluent is characterized by high levels of Biochemical Oxygen Demand (BOD), Chemical Oxygen Demand (COD), Total Suspended Solids (TSS), fats, oils, and grease (FOG), as well as fluctuating pH and nutrient loads (nitrogen & phosphorus).
Key Challenges Addressed
High Organic Load: Raw effluent can have BOD levels 50–100 times higher than domestic sewage.
Seasonal Variability: Production cycles cause drastic fluctuations in flow rate and contaminant concentration.
Strict Regulatory Compliance: Stringent discharge limits (e.g., EPA, EU Water Framework Directive) for surface water or sewer discharge.
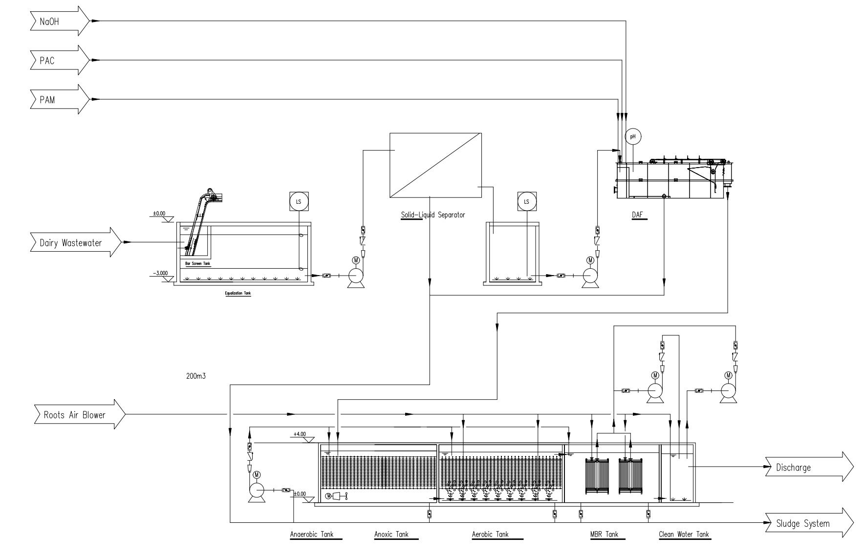
A: Primary Treatment (Pre-treatment)
Screening & Grit Removal: Removal of large solids, pits, seeds, and packaging fragments.
Equalization (EQ) Tank: Balances flow and pH to smooth out peak organic loads.
Dissolved Air Flotation (DAF): Highly effective for removing FOG and fine suspended solids. Chemical coagulants (e.g., polyaluminum chloride) and flocculants are often dosed to enhance separation.
B: Secondary Treatment (Biological Core)
Anaerobic Digestion (AD): For high-strength waste (COD > 2,500 mg/L). This step reduces organic load by up to 85-90% while generating methane-rich biogas, which can be captured to power factory boilers or generators. Common reactors: Upflow Anaerobic Sludge Blanket (UASB) or Expanded Granular Sludge Bed (EGSB).
Aerobic Treatment (Polishing): For residual organics. Technologies include:
Membrane Bioreactor (MBR): Combines activated sludge with ultrafiltration membranes, producing high-quality effluent suitable for reuse.
Moving Bed Biofilm Reactor (MBBR): A compact, resilient solution for fluctuating loads, requiring less footprint than conventional activated sludge.

C. Tertiary Treatment (Reuse & Discharge)
Nutrient Removal: Biological or chemical removal of nitrogen and phosphorus to prevent algal blooms in receiving waters.
Disinfection: UV radiation or chlorination to eliminate pathogens, essential for water reuse.
Reverse Osmosis (RO): For advanced reuse (e.g., boiler feed water or CIP (Clean-in-Place) rinsing).